Комбо-бокс: все в одном
Сделайте комбо-бокс: совместите кровать и полки для хранения
Как это случается, некоторые из самых гениальных решений принимаются благодаря личному опыту или потребностям. Этот стильный и инновационный дизайн мебели был создан с целью обеспечить компактные решения для хранения разных вещей, прежде всего, для собственной квартиры с одной спальней. В этом проекте предлагается интересный вариант в виде платформы с кроватью размера «queen-size», пространством для хранения внутри или рабочим местом под ней. Такое современное дизайнерское решение для многих студийных квартир с «ограниченными возможностями» поможет сэкономить пространство.
Варианты зонирования помещения
Существует несколько способов:
- Достаточно популярным приемом зонирования является использование перепада пола или потолка.
- Также отличным разграничителем пространства может послужить освещение. Например, более яркие источники света устанавливают в центре гостиной, а в кухонную и спальную зону, выбирают подсветку, имеющую рассеянное свечение.
- Для квартиры-студии в качестве зонирующего элемента уместна различная мебель или аксессуары. Это может быть красивый аквариум, барная стойка, диван или камин.
- Очень часто применяют зонирование с перегородкой, в виде изящной этажерки, светлой ширмы и других менее громоздких конструкций.

На фото вариант зонирования картиры-студии 30 кв м с помощью перепада уровня пола.


Стили интерьера
Чтобы квартира выглядела целостно и гармоничной, лучше соблюдать единство стиля повсюду. Или сочетать концептуально схожие направления, которые будут непринужденно дополнять друг друга. Слишком вызывающие контрасты на 30 кв.м. могут получиться очень перегруженными.
Квартира 30 кв.м. в стиле минимализм
Минимализм – это светлые оттенки, сложное освещение, максимум пространства и минимум вещей. Тщательно продумай, что действительно понадобится тебе в квартире. Если же ты задумываешься, а не пора ли избавиться от лишнего хлама и вещей – это отличный повод.

Квартира 30 кв.м. в современном стиле
Современный стиль объединяет классическую консервативность с актуальной практичностью. Дорогие натуральные материалы сочетаются тут с акрилом, хромом и зеркалами. Цветовая гамма – традиционная и сдержанная, максимум – с 2-3 акцентами.

Квартира 30 кв.м. в классическом стиле
Дорогая и роскошная классика требует внимания к деталям: старинная фурнитура, лепнина, декоративные потолочные розетки, красивые ручки мебели. А главное – фактурные отделочные материалы: натуральное дерево, камень, плотный тяжелый текстиль. Уравновесить это поможет простота геометрии и четкая симметрия с выраженными центрами в планировке.

Квартира 30 кв.м. в стиле лофт
В лофте тебе не придется прятать коммуникации, выравнивать открытые кирпичные стены, закрывать радиаторы экранами и беспокоиться о сочетании обстановки. Здесь одинаково уместны антикварные комоды, ультрасовременные барные стойки с неоновой подсветкой, диваны с жаккардовой обивкой и кресла-мешки.

Квартира 30 кв.м. в стиле прованс
Прованс – один из самых изящных и романтичных стилей среди всех. Это нежные пастельные тона, старое выбеленное дерево, обилие текстиля и декора, всевозможные рюши, кружева и ручная работа. Везде встречаются растительные и цветочные мотивы, мелкие узоры, полосы и горох.

Разделение на зоны
Чтобы выделить зоны отдыха, приготовления и приёма пищи, дизайнеры используют следующие способы:
- Разная отделка пола, стен и потолка. Для выделения стен в зоне кухни и гостиной применяют обои разных фактур и расцветок. Для кухонной части самыми практичными материалами отделки стен станут моющиеся обои и керамическая плитка. Стену в гостиной части часто выделяют при помощи фотообоев. Для пола применяют разные напольные покрытия: обычно для кухни — кафель, для зоны отдыха — паркет. Можно использовать одно покрытие, например, ламинат, но отличающееся по тону или текстуре. Над одной частью комнаты можно установить натяжной или навесной потолок контрастного цвета. Разграничить пространство поможет потолочная балка.
- Освещение. Его не используют в качестве основного способа зонирования, скорее, в качестве дополнительного. Над обеденным столом уместно установить большую низко висящую люстру. Рабочую зону стоит осветить светодиодной лентой или несколькими точечными светильниками. В гостиной зоне рекомендуется установить осветительные приборы, обеспечивающие рассеянный свет.
- Подиум. Пол в зоне кухни приподнимают примерно на 15 см. Если в помещении низкие потолки, то подиум заберёт часть свободного пространства и сделает потолок визуально ещё ниже.
- Перегородка, ширма или штора.
Очень часто для разделения на зоны используют мебель:
- барная стойка, примыкающая к стене или островного типа;
- стеллаж, на котором можно хранить красивую посуду: сувенирные тарелки с изображением пейзажей, хрустальные фужеры и прочее;
- диван, расположенный спинкой к кухонной зоне;
- аквариум;
- обеденный стол.
Условное разделение пространства
Как правило, дома представляют собой трехмерное пространство, где на общее восприятие влияют не только площадь, но и объемы. К примеру, особое значение имеет высота потолка.
При реализации дизайн проекта небольшой квартиры, возможно, стоит подумать о том, что потребуется полное вмешательство — внутренняя «чистка» и отделка внутренних помещений, снос перегородок и несущих наружных стен.
Однако, вначале необходимо проконсультироваться с соответствующими инстанциями. Только после получения ответа на возможность перепланировки, можно заняться дизайном квартиры.
Сделать потолок выше можно за счет покраски в тон светлее, чем стены
Темный потолок, наоборот, поможет сделать помещение ниже.
Для визуального разделения сред, следует обратить внимание на раздвижные двери до потолка. Это может быть мобильная перегородка между спальней или кухней
Так, при желании домовладельцы могут закрывать раздвижные панели.
Для расширения пространства целесообразно использовать перегородку. Барные стойки, раздвижные двери, стеллажи, аквариумы — все эти вещи можно сделать перегородкой.
Если в квартире есть подсобное помещение, не стоит сразу же сносить стены и заниматься планировкой квартиры. Возможно, стоит подумать о том, чтобы оборудовать в помещении гардеробную, где можно будет хранить вещи.
Зонирование кухни – столовой
Даже в маленькой квартире столовая и кухонная зоны могут выглядеть стильно и эффектно несмотря на нахождение в одном помещении. Зонирование позволит получить вам не только необычную и функциональную обстановку, но также и оригинальный дизайн.
Зонированием является прием, используемый дизайнерами в разграничении пространства на разные функциональные зоны.
Такой прием используется для получения условных границ, например, между кухней и столовой или зоной отдыха для более комфортного обитания в апартаментах.
Очень часто для осуществления зонирования используют различные материалы в отделке стен, потолка и пола, чтобы с помощью тех или иных цветов «отделить» несколько зон.
Способов зонирования существует довольно много и вам необязательно использовать какой – то один, чаще всего следует сочетать несколько для получения наилучшего результата.
Отделить кухню от столовой вы можете с помощью различной мебели, например, барной стойки, декоративного камина или дивана.
Очень удачным и интересным вариантом зонирования могут стать декоративные перегородки. Но их основная цель не полностью отделить комнаты и что – либо скрыть, а лишь выполнить условное разделение.
Такие декоративные перегородки могут быть из стекла,
дерева или различного текстиля.
Кроме того, очень часто зоны отделяются с помощью различной отделки стен. Например, кухня у вас может быть с кафельной отделкой в сочетании с обоями, а столовая только с отделкой обоями, но уже другого цвета.
Нюансы дизайна интерьера однокомнатной квартиры: лайфхаки
- Расположите мебель свободно: островным способом или по периметру. Помните, что знаменитая «стенка» из 90-х там и осталась, и для создания гармоничного интерьера необязательно заполнять каждый квадратный метр аксессуарами или предметами мебели.
- Диван как альтернатива кровати. Места занимает гораздо меньше, а при грамотном выборе основания, системы трансформации и матраса может быть ничуть не хуже полноценной кровати.
- Зонируйте с умом. Порой стеллажа, занавески или перегородки вполне достаточно, чтобы выделить функциональные зоны в квартире и сделать пространство «воздушнее» — массивных стен-то нету.
- Мебель-трансформер. Особенно хорошо вариант работает в отношении откидной кровати. Днем она превращается в стенку с декором или откидным столиком, вечером — в полноценное спальное место.
- Кровать на антресоли. Тут многое зависит от высоты потолков. Если она позволяет, можно установить двухъярусную установку, разместив кровать на втором ярусе, а на первом встроить шкаф или полноценное рабочее место. В целом подиумы и антресоли — отличные решения для экономии квадратных метров.
- Задействование места на подоконнике. Рабочую или обеденную зону можно успешно разместить на широком подоконнике. К нему же можно пристроить откидной столик, который в случае необходимости станет его логичным продолжением.
- Все тяжелое не нужно. Это касается слишком текстурной отделки, тяжелой внешне мебели, пышными занавесками и так далее. Даже при обустройстве классического интерьера избегайте многочисленных акцентов, характерных стилю. Достаточно нескольких акцентов.
- Больше света — больше пользы. И дело не только в освещении. Стекло, зеркала, глянцевые поверхности, прозрачные световые завесы — все это создает максимально гармоничное и уютное пространство.
- Учитывайте расположение комнат / зон. Например, место зоны спальни в дальнем углу квартиры, зоны отдыха — поближе к центру, рабочая зона — на изолированном балконе или другом уединенном месте.

Квартира-студия 30 кв. м с балконом
Для небольшой комнаты-студии наличие балкона или лоджии — просто находка, т. к. за счет их площади можно увеличить полезное пространство. Назначение этой площади зависит от того, какая зона располагается рядом, личных предпочтений.
Как правило, стена между балконом и комнатой несущая, поэтому полностью ее демонтировать не удастся. Убрать можно только оконный блок и дверь. Необходимо установить на дополнительной площади электрический теплый пол либо обогреватель. Нельзя переносить на балкон радиатор центрального отопления.
На балконе, лоджии обустраивают:
- рабочий уголок;
- выносят туда холодильник, оборудуют хозяйственный шкаф;
- оставшуюся часть подоконника переоборудуют в барную стойку, обеденный стол;
- делают уголок отдыха.


Дизайн хрущевки
Кухни в малогабаритных квартирах (хрущевках) занимают площадь 6-7 м². На такой скромной квадратуре нужно разместить необходимый набор мебели и сделать это таким образом, чтобы не было загромождений. В этом вопросе поможет мебель ИКЕА. Как вариант, небольшой обеденный прямоугольный стол с закругленными краями и 4 стула. В прямоугольном помещении его можно установить перпендикулярно рабочей зоне.
Для обустройства рабочей зоны торговая марка ИКЕА предлагает разнообразные решения. Сторонникам классики стоит присмотреться к кухне, которая состоит из тумб с выдвижными ящиками и закрытых навесных шкафов. Мебель такого плана скрывает кухонную утварь, не создается ощущение беспорядка. В верхней части, между шкафами устанавливается вытяжка, что позволяет приготовить блюда без распространения запахов по всей квартире. Кухни ИКЕА гармонично сочетаются со встроенной мебелью — духовкой, варочной панелью, посудомоечной машиной.
Для гостиной зоны идеально подойдет стеллаж с открытыми полками. Здесь размещают сувениры, книги, фоторамки. В малогабаритных квартирах как раз для «мелочевки» зачастую не хватает места. Открытая мебель справится с этой задачей. Это хороший вариант разделения на функциональные зоны. Такой атрибут можно установить в нише возле кровати, он будет завершающим аккордом. Практичнее всего выбирать модель высотой до потолка — чем выше стеллаж, тем больше вещей в нем можно разместить.
Цвет мебели должен гармонировать с интерьером — если другая мебель выполнена в пастельных тонах, смело покупайте шкаф с открытыми полками светлого оттенка. Поверхность глянцевая или матовая — на усмотрения хозяина.
Коридоры в небольших 30 метровых квартирах, как правило, узкие. Но в прихожих скапливается много вещей — зонты, обувь, ключи и многое другое. Идеальным решением станет высокий комод небольшой глубины. Он не будет скрадывать полезное пространство, но поможет разместить вещи вдали от посторонних глаз, тем самым, обеспечив порядок. Над комодом располагают открытую вешалку для верхней одежды с полкой, на которой размещают головные уборы.
Не менее важное помещение в каждой квартире — ванная комната. За неимением места в санузлах устанавливают душевые кабины — это практичное и современное решение. Магазин ИКЕА предлагает сантехнику в стиле минимализм, которая впишется в небольшую ванную и будет удобной для всей семьи
Ее легко мыть, оттирать от водного налета и брызг
Магазин ИКЕА предлагает сантехнику в стиле минимализм, которая впишется в небольшую ванную и будет удобной для всей семьи. Ее легко мыть, оттирать от водного налета и брызг.
Умывальник, унитаз и душевая кабина из одного комплекта, что не нарушает целостности помещения. В квадратной ванной комнате кабина устанавливается в углу, рядом с ней целесообразно вмонтировать умывальник, с другой стороны — инсталляцию.
Гостиную сложно представить без удобного дивана, который при необходимости может стать спальным местом. В небольшом помещении его можно расположить по центру комнаты возле окна. Станет своеобразной разделяющей точкой — завершением спальни и началом зоны релакса. Возле дивана устанавливают комод, шкаф в этом случае будет загромождать интерьер. Телевизор монтируют так, чтобы его было удобно смотреть с разных точек помещения. Диваны ИКЕА не занимают много места, стильно смотрятся и сочетаются с другими атрибутами жилища.
Разделить помещение кухни и гостиной поможет правильно выбранное напольное покрытие. Для кухни подойдет плитка, которую легко очистить от загрязнений, для комнаты — ламинат, ступать по его поверхности тепло и комфортно. Обеденный стол можно установить на этой границе.
Планировка и составление дизайн-проекта
Пространство небольшой студии 30 кв. м легко расширить и сделать уютным с помощью нехитрых дизайнерских приемов. Любое начинание, особенно касающееся кардинальных видоизменений в помещении, должно опираться на заранее подготовленный подробный план. Можно сотрудничать с профессиональными дизайнерами или довериться своему вкусу.
Если перепланировка намечается в двухкомнатной хрущевке, необходимо найти план постройки и убедиться в отсутствии несущих стен. Создание основного проекта должно происходить с участием следующих документов:
- Обмерный план. Площадь квартиры, прилагаемые составляющие элементы измеряются с помощью современного оборудования.
- Записи о возводимых конструкциях. Упрощают обустройство вставных деталей, вновь построенных арок, ниш.
- План демонтажа. Указывает на участки, предназначенные к сносу, перепланировке.
- Схема потолка и стен с отметками о размещении электрических точек. В документе отражен путь прохода новой проводки, розеток, выключателей, потолочных светильников и прочего, купить недорогой кабель ВВГ можно в интернет- магазине.
- Схема разводки труб. Составляется при необходимости перепланировки санузла, добавления новых батарей.
Пространство квартиры-студии до 30 кв. м должно быть светлым. Если есть застекленный балкон, его можно утеплить и сделать рабочую зону или добавить эту площадь к общей. Перед тем как составлять дизайн проект, надо подобрать несколько вариантов эскизов, мебельных групп, цветовых палитр.

При составлении проекта необходимо добиться точного соединения всех деталей в один ансамбль. На небольшой площади малейшее отклонение тона или текстуры будет заметно. Открытая планировка требует грамотной расстановки акцентов. Студия не должна быть перегружена мебелью и бытовыми приборами, следует грамотно продумать скрытую систему гардеробного хранения.
Зонирование
Чтобы маленькое пространство выглядело уютно и включало все необходимые предметы, квартиру нужно зонировать. Для разделения есть несколько способов:
● Низкая перегородка. Вы можете возвести невысокую стену и поставить на нее цветы, свечи или книги. Также ее можно сделать барной стойкой.

Фото жилища с невысокой перегородкой
● Шторы и другой текстиль. Разделить комнаты можно с помощью штор. Они отлично помогают, когда приходят гости или члену семьи необходимо уединение.

Использование шторы для разделения кухни и гостиной
● Изменение отделочных материалов. Например, примените в оформлении кухни светлую плитку, а для зоны отдыха подберите яркие обои или краску.

Разная отделка стен
● Использование мебели для зонирования. У вас есть возможность разделить комнату с помощью открытых шкафов, барной стойки, дивана или тумбы для телевизора. Также можно поставить ширму или этажерку.

Зонирование жилища с помощью стеллажа
● Создание подиумов. Вы можете разместить на возвышение кровать или кухню.

Образец помещения с небольшим подиумом
Зонирование пространства
Если тебе нужно разместить в квартире 30 кв.м. несколько функциональных зон, на помощь придут разные методы зонирования пространства. Только вместо массивных стен используются куда более компактные и аккуратные решения.
Статичные перегородки
Тонкие перегородки легко заменяют полноценную межкомнатную стену, только они тоньше и легче. Это хороший вариант, если ты хочешь отделить гардеробную или кладовку для вещей. Те же перегородки используются для создания встроенных систем хранения и скрытого монтажа шкафов.

Мобильные перегородки
Преимущество мобильных перегородок в том, что их можно убирать и выдвигать по необходимости. Например, изящные ширмы из тонкой ткани или бумаги в японских интерьерах. Они могут быть выдвижными, раздвижными, складными или любыми другими.

Текстиль
По тому же принципу для зонирования используются шторы и занавески, но их придется регулярно снимать и стирать. Также учти, что нужно будет спрятать карниз или специальную струну в потолочную конструкцию. Зато это хороший выбор для изящных романтичных интерьеров, вроде прованса. А в классике шторы можно обыграть роскошными ламбрекенами, подхватами и кистями.

Арки и гипсокартонные конструкции
Гипсокартонные конструкции, в отличие от классических статичных перегородок, могут быть любой формы и конфигурации. Например, невысокие можно переоборудовать под столешницу или барную стойку. В них же отлично встраиваются ниши и полки вместо стеллажа.
По тому же принципу используются арки: классические, прямоугольные, округлые или фигурные. Арки могут быть полноценными или декоративными – едва намеченными, чтобы обозначит разные зоны. Например, так часто совмещают комнату с балконом: убирают стену не полностью, а оставляют широкую арку.
Используются и многоуровневые горизонтальные конструкции: потолочные и напольные. Подиумы – отличный выбор для квартиры на 30 кв.м., ведь они не занимают место, как перегородки. А внутрь можно встроить ящики или коробы для хранения вещей.

Цвета и фактуры
Если ты не любишь любые дополнительные конструкции, загромождающие пространство, используй для зонирования акценты. Это цветные стены, разные фактуры отделочных материалов, декоративный текстиль, обивка, ковры и подушки, зеленые уголки и многое другое.

Мебель
Классическая корпусная мебель с пеналами, тумбами и подвесными шкафами не пригодна для зонирования. А вот сквозные стеллажи, современные шкафы с дверцами с обеих сторон, вытянутые столешницы и барные стойки – все это в твоем распоряжении. Альтернативный вариант – островная расстановка мебель, но это лучше подходит для минималистичных интерьеров на 30 кв.м.

Дизайн студии 30 кв. метров с подиумом
Еще один интересный вариант организации студии, планировки и дизайна в 30 кв. метрах – зонирование при помощи подиумов. Это смелое дизайнерское решение поможет визуально выделить одну из функциональных зон в квартире. Как правило, на подиуме располагают кухню или спальню. Рассмотрим оба варианта.
Для прямоугольных помещений актуальным является вариант размещения на подиуме кухни. В этом случае подиум делают высоким, спуская к зоне гостиной лестницу. Саму кухню оформляют как обычно, используя стандартные прямые кухонные гарнитуры, либо выбирая вариант мебели под заказ. Рядом ставят небольшой обеденный стол со стульями. Обеденную зону часто скрывают за гипсокартонной перегородкой, которая выполняется в высоту сидящего за столом человека.
В зоне гостиной за перегородкой располагают диван. Чаще всего сюда вмещается двухместный вариант. Он может быть представлен моделью с раздвижным механизмом и представлять собой единственное спальное место. В этом случае оставшееся пространство можно использовать в качестве кабинета или детской.
Если на диване спать не хочется, то придется подумать об оформлении места для полноценной спальной кровати. Эту зону лучше скрыть от посторонних глаз либо за раздвижными дверями, либо за легкой перегородкой. Хорошим вариантом, не утяжеляющим внешний вид комнаты, является текстиль.
Второй вариант – расположение на подиуме кровати. Именно он наиболее часто встречается на фото дизайнов студий 30 кв. метров. Особенно здорово эта задумка реализуется в комнатах, имеющих квадратную или Г-образную форму. Такие студии легко зонируются квадратами, а, чтобы планировка имела свою изюминку, в одном из квадратов оборудуют подиум.
Такое решение имеет ряд преимуществ:
- Спальня не занимает много места;
- Под подиумом появляется пространство для хранения габаритных вещей;
- Несложная конструкция выглядит эффектно.
На подиуме размещают, как правило, не полноценную кровать, а матрас. Для удобства в этом квадрате предусматривают источник искусственного освещения даже в том случае, если спальное место размещается у окна. На стенах можно разместить функциональные полки, либо декорировать пространство крупной картиной или фотографиями в рамках.
Во втором квадрате располагают стандартный кухонный гарнитур. Часто эту зону организуют таким образом, чтобы она встречала человека, вошедшего в квартиру. Линию кухонного гарнитура продолжит встроенный шкаф той же глубины. Рядом располагают стол, который послужит как в качестве обеденного, так и в качестве рабочего места.
Завершающим аккордом станет полноценная гостиная с комплектом мягкой мебели вокруг журнального столика. Для этой зоны, как и для остальных, следует продумать декор и источники освещения в зависимости от выбранного стиля ремонта.
К слову, такая планировка студии будет отлично смотреться в квартирах, выполненных в азиатском стиле. Выбор в пользу минимализма позволит продумать больше мест для хранения, расположенных по стенам. Например, в зоне гостиной можно разместить скрытые полки для хранения книг. Возможно выполнение бюджетного ремонта в современном стиле. В этом случае можно ориентироваться на стоимость мебели, представленную в предыдущих пунктах.
Сколько стоит оборудование подиума? Некоторые компании, специализирующиеся на изготовлении подиумов, выполняют такие конструкции из натурального дерева, отвечающие разным запросам заказчиков. Конструкции бывают самых разных модификаций, вплоть до вариантов, где под подиумом скрывается выдвижная кровать. Самый простой вариант со скрытой системой хранения обойдется в сумму около 100 тысяч рублей.
Что такое квартира-студия?
Понятие «студия» (англ. «studio») в значении жилого помещения пришло в постсоветские страны из США. Там оно зародилось в двадцатых годах прошлого столетия. Оно значило бюджетное жилье для небольших семей. В то время США столкнулись с проблемой нехватки жилой площади в крупных городах. Причиной этому была огромная волна иммигрантов из стран Европы и Азии. Так что иммигранты и просто небогатые молодые американцы нуждались в недорогом жилом помещении, но с наличием всех современных благ цивилизации.
И квартира-студия стала отличным решением квартирного вопроса для многих молодых семей и студентов Северной Америки начала двадцатого столетия. Ведь она, несмотря на малую площадь, включала санузел, кухню, душ и собственно само жилое пространство. Перегородок и стен между зонами не подразумевалось. Также в студии в основном две двери: входная и дверь в санузел. Но со временем из бюджетного жилья квартира-студия стала переходить в разряд современного престижного жилья. Студия превратилась в огромное поле для полета дизайнерской мысли и креативных решений.
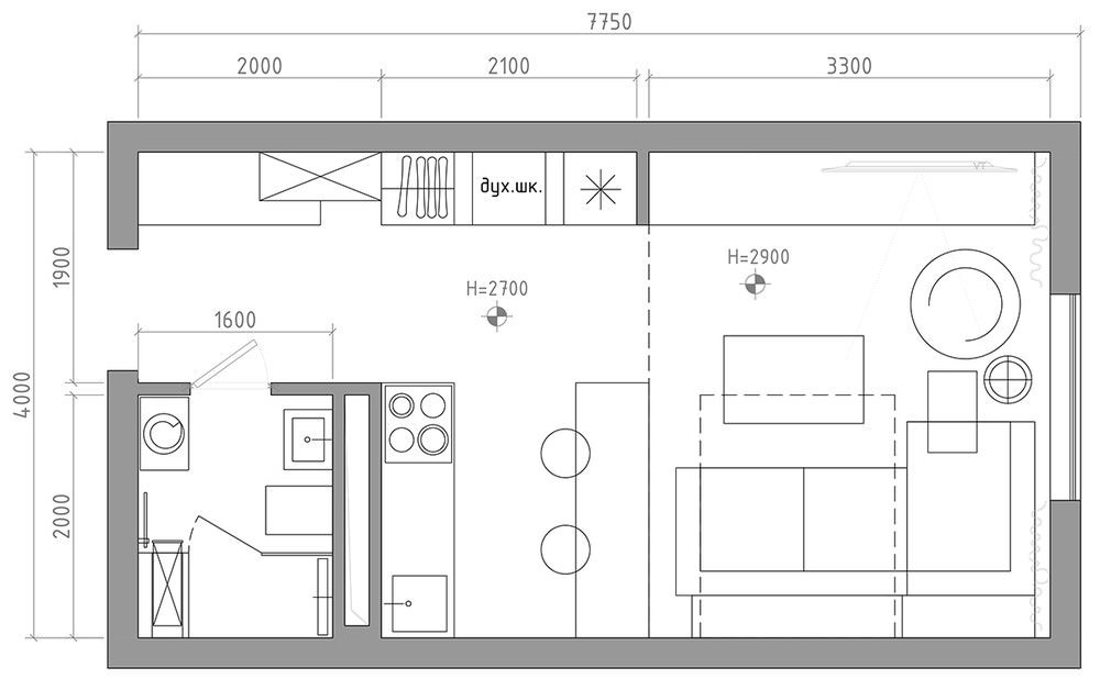
Планировка удобного компактного жилья площадью 30 кв. м
Визуализация ультракомпактного решения в меблировке прямоугольной студии (полный план — см. рисунок выше)
Стоит заметить, что идея объединить вместе кухню, санузел и жилое пространство в одном помещении без стен не приходила на территорию стран СНГ ни во времена Российской Империи, ни после революции. Такое архитектурно-планировочное решение обрело популярность у нас только в конце девяностых. Причем и сегодня жилые помещения не строятся с планировкой объединения столовой и жилого помещения. Они делаются с помощью уборки перегородок и стен, а также полной перепланировки квартиры. Вообще, архитекторы и дизайнеры обычно по-разному определяют понятие квартира-студия. Но все специалисты согласны с тем, что это жилое помещение без жестких перегородок и наличием только входных дверей и дверей в ванну и санузел.
Оформление компактного жилья без перегородок студии Concretica в стиле советского модернизма (продолжение)
Лаконичность форм и цветовых сочетаний продолжена также и в санузле студии от тандема дизайнеров Concretica. Это — демонстрация того, настолько стильными могут быть бюджетные решения в отделке
Рекомендуем: Однокомнатная квартира площадью 47 кв. м
Сегодня такая планировка очень популярна во многих развитых городах. Причем, такое жилье представлено как в низких, так и высоких ценовых категориях недвижимости. Недорогие квартиры-студии обычно строятся из однокомнатных или двухкомнатных квартир малой площади. Также на рынке недвижимости представлены жилые помещения такой планировки большой площади с множеством зон и оригинальным разделением границ этих зон. Такие квартиры уже относятся к престижным и дорогостоящим жилым помещениям. Но, несмотря на такую популярность, официально не существует строительных норм и стандартов планировки квартиры-студии на территории Российской Федерации.
Использование насыщенных цветов для четкого зонирования зрительно делает эти варшавские апартаменты больше, чем они есть на самом деле. Дизайн — PLASTELINA, Лодзь, Польша
Рабочее место
Рабочее место в небольшой квартире – студии можно также оформить со вкусом.
Рекомендуется обставлять его рядом с одним большим окном, это придаст больше уюта.
Конечно, в маленькой квартире – студии отдельное рабочее место вы вряд ли сделаете, но оптимальным вариантом его размещения может стать спальная зона.
Если места совсем уж мало, то отличным вариантом станет размещение специального раздвижного столика с полочкой. Он послужит вам мини – кабинетом.
На нем вы можете разместить ноутбук и принтер, а также любой элемент декора, например лампу.
Кроме того, современный рынок мебели предлагает довольно много конструкция такого типа, которые как раз таки очень компактны и в то же время стильные.
Для размещения рабочего места в гостиной, которая в небольшой квартире может также выполнять функции спальни лучше выбирать различные компактные модели столиков.
Очень удачным вариантом может стать столик, который крепится к стене и имеет всего две ножки. Он занимает очень мало места, но зато смотрится очень изящно и ненавязчиво. Однако такой столик не подойдет для стационарного компьютера, так как столешница здесь небольшая.
Если в вашей квартире – студии есть ниша, то, конечно же, смело переоборудуйте ее и размещайте ваше рабочее место именно там. Кроме того, уместно также будет разместить рабочее место с компьютером и полочками для книг на балконе, при его наличии.
Плюсом будет также обособленность рабочей зоны. Или же, при объединении балкона с комнатой. Не забывайте, что в данном случае рекомендуется применить такой прием, как зонирование, т.е. выделение вашего рабочего места, например, с помощью напольного или настенного покрытия, которое будет отделять функциональную рабочую зону. Таким образом, она будет казаться обособленной и более уютной для вашей работы.
Планировка
Как правило, планировка квартир такого типа достаточно свободная. Ванная комната и туалет часто совмещены в другой комнате и на общие квадратные метры не претендуют.
Если для вас принципиально, какая форма будет у этой комнаты, тогда придется искать подходящий вариант. Но спланировать пространство можно в любой комнате – квадратной, прямоугольной, вытянутой.
Студия прямоугольной формы
Если позволяет возможность, можно сделать «второй этаж» исключительно для сна и поставить туда кровать. Если в такой квартире будет жить один человек, то, скорее всего, это не потребуется. Также могут возникнуть сложности с утверждением планировки в БТИ. Если это не пугает, тогда строим второй этаж.
Кухня и обеденная зона
Самое любимое в любой квартире – это место, где можно приготовить что-то вкусненькое и поесть. Кухонную зону лучше всего расположить ближе ко входу. Здесь удобно сразу же разместить гостей и выпить чаю. Дизайн кухни предполагает в первую очередь комфорт для владельца, а под рукой все необходимое. Как правило, в небольшом помещении это только кухонный гарнитур. Его необходимо сочетать со стилем всей квартиры и не особо выделяться.
Маленькая практичная кухня
Если вы выбрали классику, то барная стойка будет неуместна. Интересное решение – спрятать гарнитур в проход при вытянутой форме. В стиле лучше применить простую фактуру и однотонность. Выделяющим элементом может стать плитка в виде мозаики.
Современные производители предлагают использовать открытую часть между кухонным гарнитуром как место для «картин». Здесь применяют фототехнологии. Можно повесить ночной мегаполис и поле из ромашек. Часто используются изображения фруктов и кофе. Для зоны плиты можно разместить картину с инжиром.
1
4
Варианты планировки квартиры-студии
Дизайн с одним окном
Планировка квартиры студии с одним окном проблематична в обустройстве, так как приходится учитывать ограниченное пространство и минимальное освещение. Хорошо, если комната находится на солнечной стороне и большую часть дня свет будет поступать широким потоком.

Единственный верный выход – минимализм. Этот стиль предполагает умеренную «бедность» дизайна, при котором нет необходимости покупать полный комплект мебели, использовать какие-либо элементы роскоши. Простой интерьер, без лоска и блеска. Более того, он позволяет увеличить пространство, как физически, так и визуально. Так как не нужно производить мебелирование, места становится больше, а светлый интерьер зрительно делает комнату просторнее.

В этом случае зонирование не нужно. Достаточно освободить комнату и сделать ее просторнее. Кроме этого, рекомендуется наполнить комнату искусственным светом. Для минимализма подходят точечные светильники. Они вообще не занимают места и дают ровный дневной свет.

Ремонт в студии должен быть самым простым. Отделка минимальная, максимум – белые обои. Любые ниши могут использоваться с умом, например, для выращивания растений. Цвета светлые, чтобы дополнительно увеличить комнату.

В качестве шкафов могут применяться:
- Подвесные полки. В отличие от шкафов, освобождают комнату от лишнего мусора, заставляют использовать минимум вещей.
- Ящики в кровати. Лучше, если бы ложе имело специальные подкроватные ящики, которые позволят хранить одежду, постельное белье и бытовую химию.
- Комоды. Отличная альтернатива шкафам. Очень вместительные, но при этом занимают в трое меньше места.

Студия-кухня
Кухни в квартире часто соединяются с гостиной, с помощью сноса перегородки. В этом случае реально создать комфортное пространство. При этом столовая отлично интегрируется в зал, не теряя своих качеств.

Проект квартиры студии с кухней подразумевает соблюдение некоторых правил:
Лучше всего воспользоваться естественной перегородкой, которая остается после сноса стенки. Однако можно создать ее искусственно. Самый простой способ – барная стойка или островок. Это одновременно и граница, и удобная часть мебельного гарнитура. В квартире должно быть минимум вещей и мебели
Это не позволит захламить площадь, что очень важно при ограниченном пространстве. Но дизайн студии 30 кв м и более может предполагать даже полноразмерные кухонные гарнитуры. По максимуму нужно использовать не широту, а высоту
По максимуму нужно использовать не широту, а высоту
Не стоит забывать про свободное пространство, которое находится на стенах. Дизайн кухни может подразумевать бесчисленное количество настенных полочек открытого типа. Они почти не занимают места и при этом позволяют разместить кастрюли, тарелки и продукты.
Студия-спальня
Проект студии спальни прост, если придерживаться следующих правил:
- Ограничение спального места. Не нужно оставлять очень много пространства за кроватью. Ее лучше сделать ограниченной одной кроватью или вообще сделать ее трансформерной. Второй вариант позволит оставить все помещение для отдыха и развлечений. Особенно это полезно в том случае, если в квартире живут дети.
- Ограждение стеной. Не стоит мешать гостиную и спальню, так как полученная комната потеряет качество первого и второго. Ремонт квартиры студии не требует возведения фундаментальной перегородки. Достаточно небольшого простенка или даже стеклянной изгороди. Ее будет хватать для полноценного отдыха и даже отдельного сна.
- Диван кровать. Радикальным решением проблемы выступает замена кровати и дивана на их симбиоз. Это позволит одновременно и спать, и отдыхать.
- Встроенная кровать. Если есть ниша, можно поставить кровать туда. Метод встроенной мебели позволяет сохранять место, но в квартире появится полноценное спальное место.

Посмотреть фото, как выглядит интерьер и планировка квартиры студии «спальня + гостиная» можно ниже.
Дизайн студии-зала
Интерьер квартиры с основной гостиной может основываться на условных стенах. Самый простой способ отделить ее – диван, расположенный спинкой ко всей остальной комнате.

Также часто применяется и освещение. В гостиной оно должно быть самым насыщенным и ярким. Лучше всего подходят большие люстры.

В местах перехода от одной зоны к другой приветствуются:
- Зеркальные стенки;
- Мебель;
- Шторы и ширмы.

Экономить место в зале можно с помощью кронштейна для телевизора и ликвидации гарнитура. При совмещении с прихожей, беспроигрышный вариант – низкая мебель. Тумбочки и комоды намного меньше шкафов, но при этом реально экономят место и позволяют отлично отделять гостиную часть.

Посмотреть фото дизайна квартиры студии 25 кв м можно ниже.



![Дизайн квартиры-студии [30 кв м]. идеи для интерьера и планировка](http://mebellka.ru/wp-content/uploads/4/e/9/4e9c9cea1ffffd724a6e864cf08388e7.jpeg)





![Дизайн квартиры-студии 30 кв. м. [80+ фото] планировки, зонирование](http://mebellka.ru/wp-content/uploads/e/5/5/e5517dc55d51c73bc9dec9488a944bb6.jpeg)



















